中国政府网
甘肃省人民政府
张掖市人民政府
关怀版
退出关怀版
无障碍阅读
网站支持IPV6
登录
注册
个人中心
搜全站
搜服务
搜政策
首页
党政动态
领导之窗
政务公开
政务服务
政民互动
走进山丹
当前位置:
首页
>
政府信息公开
>
法定主动公开内容
>
基层政务公开
>
城乡规划
>
城乡规划
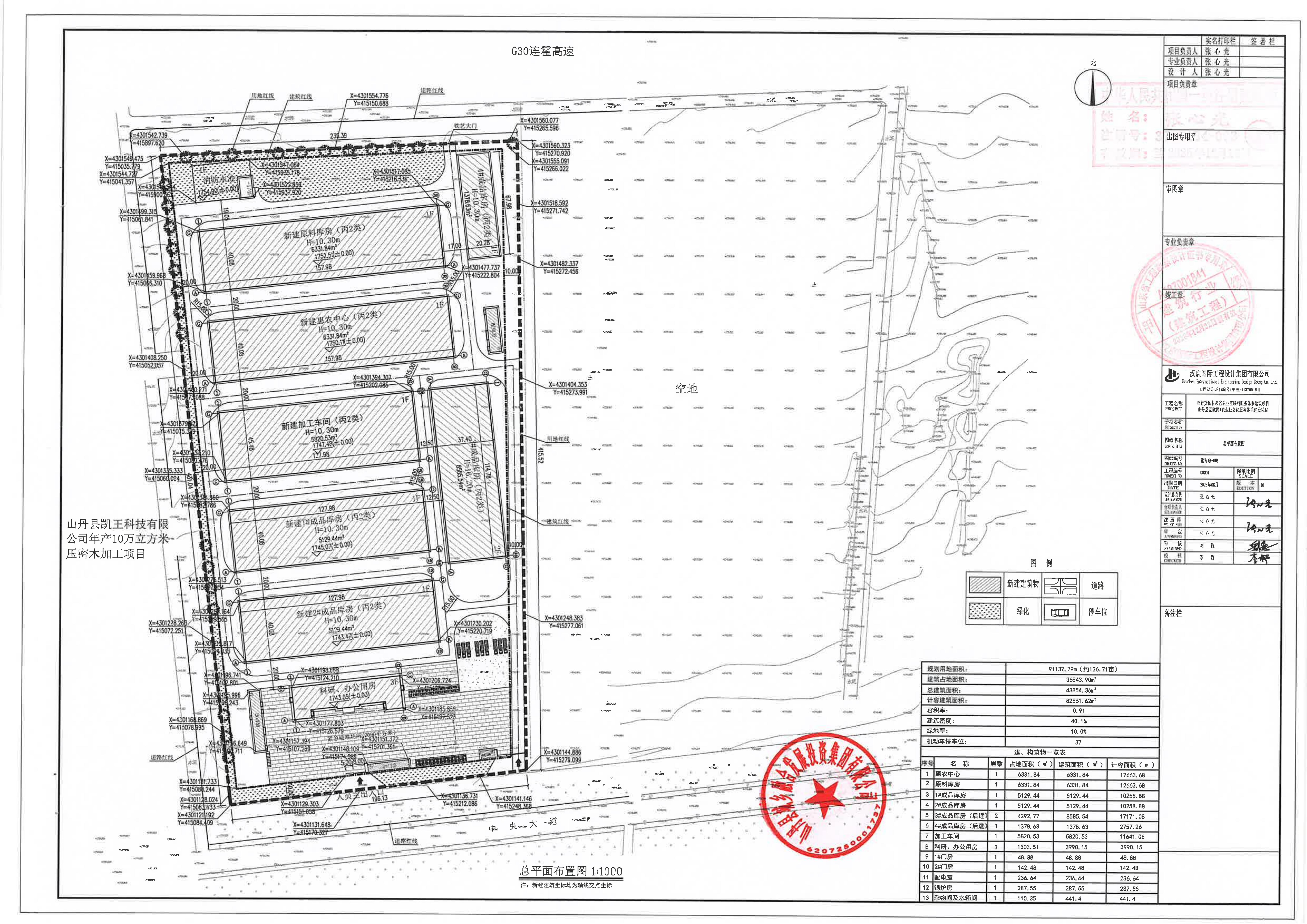
亚行贷款甘肃省农业互联网服务体系建设项目山丹县互联网+农业社会化服务体系建设项目总平面图
索引号
6207250018/2025-00351
发文字号
关键词
发布机构
自然资源局
公开形式
公开目录
生成日期
2025-12-10 15:57:26
是否有效
您的浏览器不支持 video 标签。
扫一扫在手机打开当前页面